Liaisons
Juin 2023
ZAC Bercy-Charenton
Liaisons
Le projet consiste en une résidence en forme de "S" qui intègre harmonieusement l'environnement paysager et propose une variété de logements et d'espaces partagés pour favoriser la codividualité et une relation étroite avec la nature. La flexibilité, la durabilité et l'innovation sont au cœur de cette proposition architecturale.







En savoir plus
Le schéma d'organisation du projet met en avant une orientation maximale des bâtiments vers le futur parc de la "Petite ceinture", le jardin de la parcelle et les vues éloignées, telles que le Bois de Vincennes. Cette disposition crée deux points centraux paysagers en continuité avec le parc voisin et les autres parcelles. Les bâtiments, allant du R+5 au 5+9, visent à maintenir des vues dégagées tout en préservant la continuité du paysage.
Au rez-de-chaussée, l'organisation des espaces de circulation verticale et transversale est pensée comme des espaces à partager entre voisins.
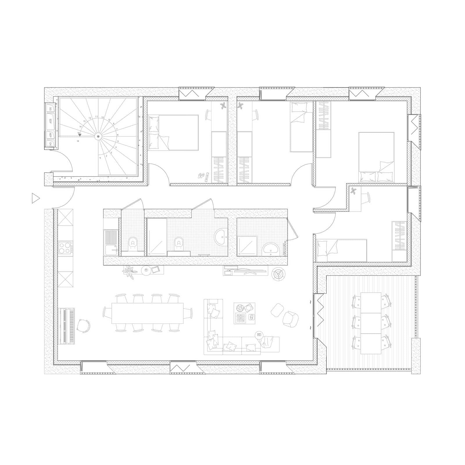
L'organisation intérieure suit une trame de 3,5 m x 3,5 m qui divise les espaces en différentes typologies de logements. La disposition en plan permet de maximiser les vues sur le parc et le tissu urbain. Les logements sont traversants, assurant une bonne ventilation et des vues étendues. De plus, les logements sont divisés en fonction de l'utilisation de jour et de nuit, avec au centre un noyau humide.
Les immeubles de pierres massives sont desservis par des circulations verticales avec des paliers ouverts et traversant, servant de terrasse partagée à chaque niveau. Les plots centraux construits en bois, quant à eux, proposent des coursives, liées aux immeubles en pierres.
Les matériaux jouent un rôle essentiel dans la conception, notamment la pierre massive pour la solidité et la durabilité, et le bois pour sa flexibilité et légèreté. L'habitat vu dans le projet est pensé pour offrir une variété de logements agréable selon les besoins d'une famille, de personnes âgées et d'étudiants.
En somme, ce schéma d'organisation met en lumière une disposition attentive à la nature et aux vues proches et lointaines, une diversité de typologies de logements pour répondre aux besoins de chacun, et une approche sensible aux matériaux et à la flexibilité.
Collaboration
Gaillard Camille